площадью 186,00 м2, по цене 45858000 по адресу Борисовский проезд - 11к1

Цена 45 858 000 р.
Район Орехово-Борисово Северное
Адрес Борисовский проезд, 11к1
Площадь помещения 186 м2
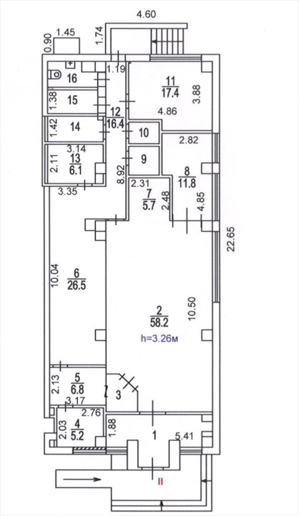
Сбер А предлагает к реализации нежилое помещение общей площадью 186,7 кв.м., расположенного по адресу: город Москва, проезд Борисовский, дом 11, корпус 1, строение 2, помещение 2. Реализация посредством проведения торгов на электронной площадке Сбербанк-АСТ. Номер процедуры: SBR065-2508270007 Cсылка на торги: https://utp.sberbank-ast.ru/Property/NBT/PurchaseV iew/43/0/0/3362370 Собственник: Московский банк ПАО Сбербанк О лоте: Нежилое помещение общей площадью 186,7 м2 Этаж: 1/7 Кадастровый номер: 77:05:0000000:2657 Обратная аренда: нет Особые условия: На Объекте произведена перепланировка, не согласованная в установленном законом порядке. Отлагательное условие по передачи Объекта: передача Объекта по акту приема-передачи осуществляется не позднее 20.01.2026г. Дополнительная информация, документы и условия реализации указаны на площадке в разделе «Документы». По всем вопросам, связанным с лотом, обращайтесь в рабочее время по телефону с 09:00 до 18:00 по МСК.
Объявление № 23419644
Дата подачи:
18 октября 2025 г. 4:06
Дата обновления:
18 октября 2025 г. 4:00
Просмотров 9 Хотите продать быстрее?

Продавец
Дмитрий СБЕРБАНК АСТ
Показать номер телефона
Пожаловаться
Комментарии:
Добавить